close
close

Hungarian Museum of Architecture

Budapest,
Hungary
Public
2023

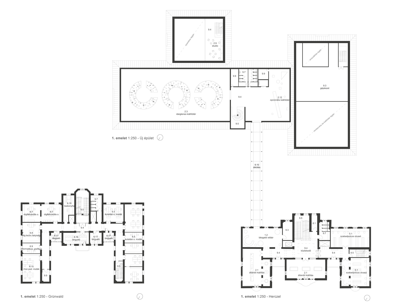
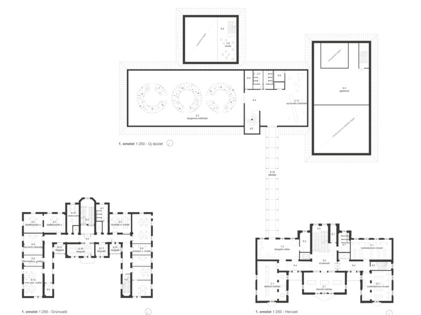
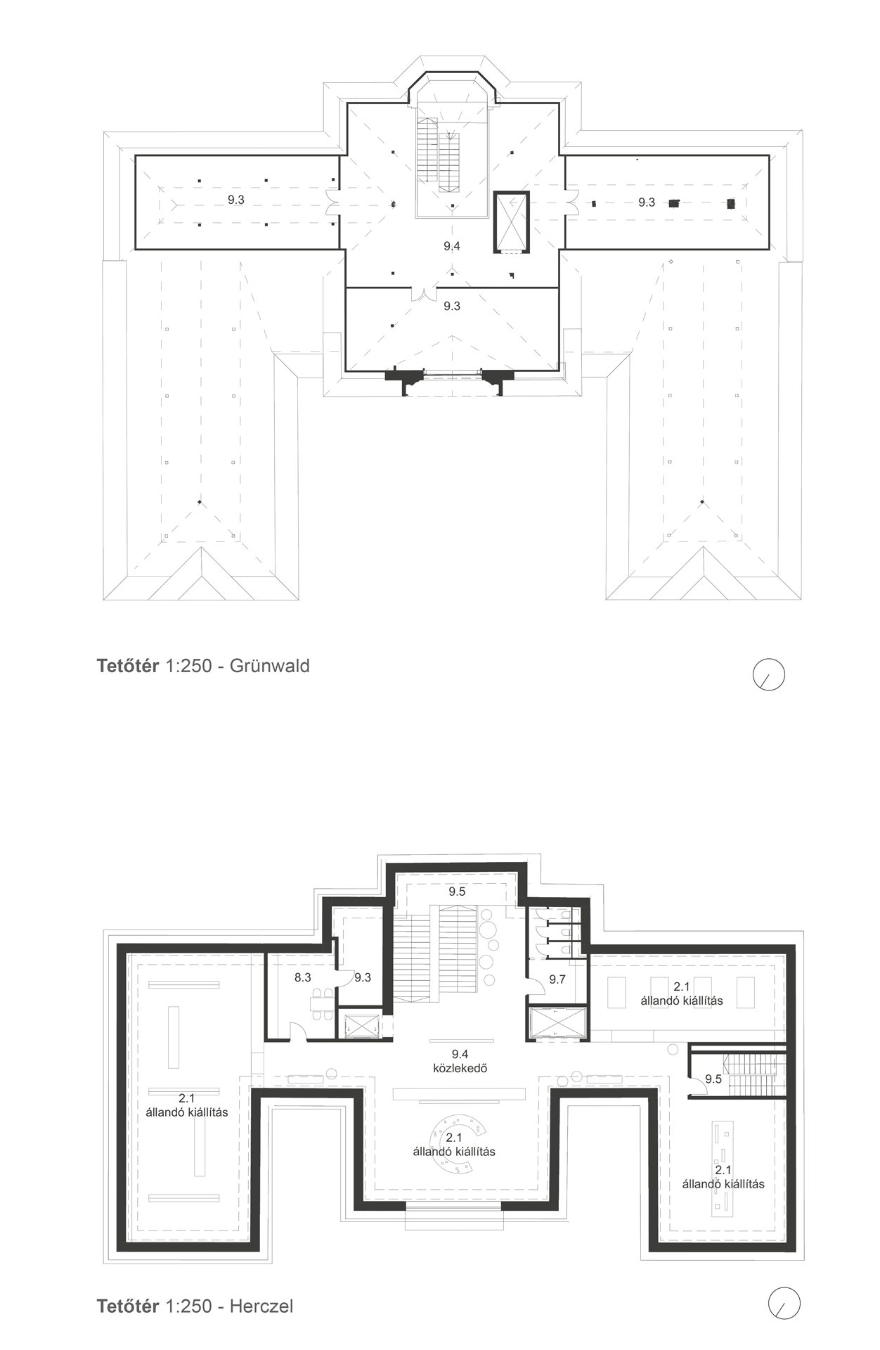
The architectural concept revolves around the roof as a metaphorical cornerstone. We’ve delved into the various meanings and values this motif can convey. The distinctive roof pattern, deeply embedded in Hungarian tradition, stands as a testament to the nation’s architectural heritage, whether exemplified in vernacular, functional, historical, or contemporary structures.

1. Content: An essential architectural element, an archetype, embodying the essence of architecture as a provider of safety and shelter.

2. Form: The roofs of neighboring residential and public buildings, along with the missing roof of Grünwald, serve as inspiring and direct precedents.

3. Materiality: Inspired by tiled stoves, utilitarian objects, and architectural cladding, glazed ceramics, a hallmark of Hungarian craftsmanship, are employed throughout.

These three elements coalesce to create a cohesive massing, form, and cladding. The roof’s unique shape and profiled glazed ceramic tiles introduce a fresh perspective while simultaneously connecting to the existing environment.

 
This site is registered on wpml.org as a development site. Switch to a production site key to remove this banner.